Главная _
Приточно-вытяжная установка Breezart 1000 Lux RP SB 4.8 220В
Приточно-вытяжная установка Breezart 1000 Lux RP SB 4.8 220В
По запросу
Быстрый заказДоставка в Пушкино
До ПВЗ: от 180 руб., 1 - 2 дня
Доставка до двери: от 330 руб., 1 - 2 дня
2 пункта выдачи в Пушкино Подробнее
Бренд: Breezart
ОписаниеПодвесная приточно-вытяжная установка с пластинчатым рекуператором (с системой защиты от замерзания, эффективная работа до -35°С) и электрическим нагревателем. Комплектуется воздушными клапанами с электроприводом, системой цифровой автоматики JetLogic с цветным сенсорным пультом управления и всеми необходимыми датчиками. Вентиляторы Ebmpapst серии EC (произведены в Германии).Функции автоматики
- - Плавная регулировка мощности калорифера для нагрева воздуха до заданной температуры, защита от перегрева.
- - Система защиты от замерзания и система разморозки рекуператора.
- - Регулировка скорости вентилятора, 10 ступеней.
- - Возможность управления увлажнителем воздуха с пульта вентустановки.
- - Контроль загрязненности воздушного фильтра (цифровой датчик давления).
- - Восемь недельных сценариев, функции «Комфорт» и «Рестарт».
- - Часы реального времени (не сбрасываются при сбое питания).
- - Возможность создания VAV-системы (требуется набор VAV-DP).
- - Порты ModBus RTU для подключения к системе «умный дом».
- - Удаленное управление с компьютера или смартфона / планшета.
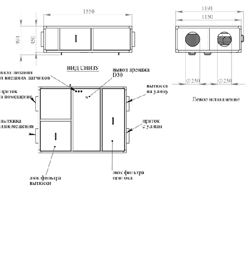
- Структурная схемаВентиляционная характеристикаГабаритные и присоединительные размерыСовместимые опции
HEP – Управление увлажнителем с электрическим пред- и постнагревателем WEB – Удаленное управление вентустановкой через web-интерфейс CT – Поддержание температуры в помещении по доп. датчику температуры (каскадный регулятор) CC – Автоматическое переключение тепло/холод (датчик заказывается отдельно) DC – Выход "сухие контакты" для управления ККБ типа On/Off (несовместимо с PC) PC – Выход 0-10В для управления инверторным ККБ (несовместимо с DC)
Совместимое оборудованиеTPD-283U-H – Пульт управления Breezart с цветным сенсорным дисплеем ALL HE P – Увлажнители Breezart с электрическим пред- и постнагревателем, увлажнители Carel humiSteam VAV-DP2 – Комплект для создания VAV-системы (модуль JL202DPR, RSCON, кабель 15м, трубка 1м, адаптер)
| Производитель: | Breezart |
| Цвет: | серебро серый |
Авторизуйтесь, чтобы оставить отзыв: Войти








